De Tivoli - Utrecht

De Tivoli - Utrecht

Afmetingen

Lengte:                      18 m 
Hoogte casco:            2m
Oppervlakte casco:   117 m²
Breedte:                     6,5  m
Inhoud:                      629 m³

'De Tivoli' 


Deze waterwoning opent zich maximaal naar het water en heeft een meer intieme relatie met de groene 
voortuin op de wal. De eigentijdse en rustige uitstraling wordt verzorgt door een compositie van grote openingen. Een donkere aluminium plint, met opbouw van verticale houten latten en zwarte kozijnen geven de woonark zijn robuuste karakter. Binnen kent de waterwoning een rustige maar warme sfeer door het opengewerkte houten plafond in combinatie met wanden en vloeren in lichte tinten. 


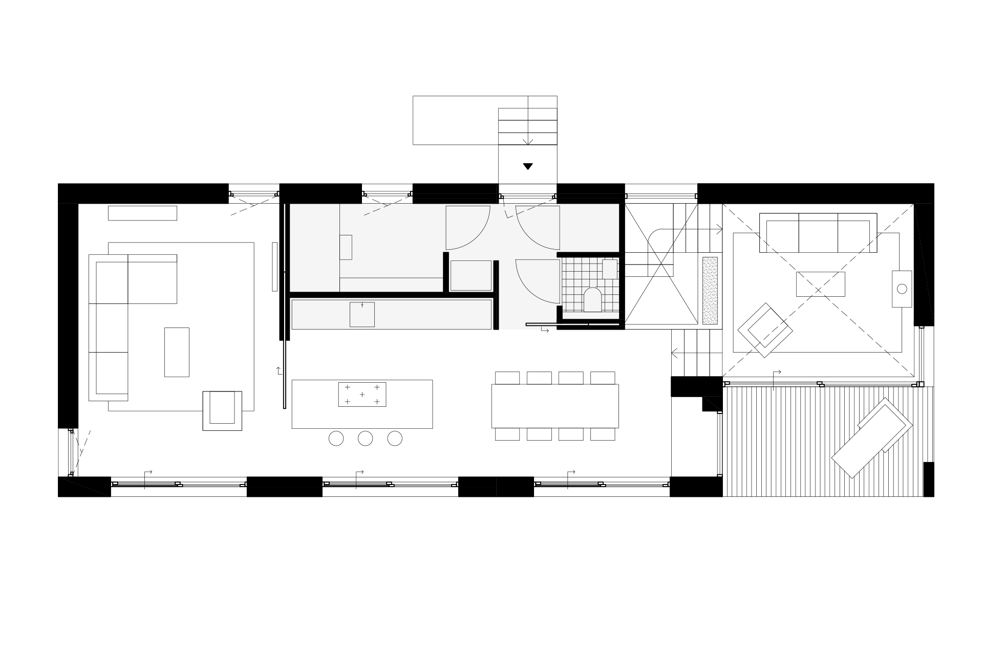
Door het realiseren van een schuifpui is de open ruimte onder te verdelen in kleine ruimten en ontstaat een woonkamer met intieme sfeer. Naast de keuken bevindt zich een diepe zitnis in de gevel waardoor de relatie 
tussen binnen en buiten wordt versterkt. 


Binnen kent de woonboot een rustige maar warme sfeer door het opengewerkte houten plafond in 
combinatie met wanden en vloeren in lichte tinten. Zonnepanelen op het dak voorzien in de eigen energiebehoefte. Het dak is uitgevoerd in een witte dakbedekking waardoor het minder snel opwarmt. De begane grond wordt verwarmd door middel van vloerverwarming. Beneden zijn een aantal elektrische verwarmers geïnstalleerd. 


De benedenverdieping is licht door het grote raam naast de trap met vide. Hierdoor valt daglicht ook diep in de woning onder de waterspiegel. Naast drie slaapkamers biedt de benedenverdieping ook ruimte aan twee badkamers, een technische ruimte en een grote berging. De wens om op verschillende plekken groen te ervaren in het interieur is vormgegeven door de integratie van een bouwkundige bloembak in de vide. 


Ontwerp: Eva Architecten